Technical buildings with over 150 standard floor plans.
The modular design offers a wide range of standard solutions that can be used for almost any task.
Different roof shapes with our all-round ventilation ensure the highest degree of safety and the adaptation of the station to the installation site.
The concrete technology is the heart of our company - and the basis of your technical building. That is why we rely exclusively on standard-compliant reinforced concrete, completely from one cast.
Extremely robust and durable.


For our room cells, we use reinforced normal concrete according to the concrete standards DIN EN 206-1/DIN 1045-2. For structures / room cells that are partially or completely embedded in the ground, the requirements for concrete with high water penetration resistance according to DIN 1045-2 and WU concrete according to the WU Directive* are also met. Production takes place in the precast plant under external and internal supervision with all the quality advantages compared to an on-site concrete construction site. This means that slender WU concrete constructions are also possible in accordance with the WU Directive*. This saves your and our resources.
Compared to the recommendations from the WU guideline*, GRITEC uses a higher quality normal concrete with compressive strength class C35/45 and a significantly lower equivalent water-cement value (w/c)eq. Together with the proven prefabricated space cell construction method from a single pour, protection goals of limiting moisture transport and water penetration from the outside to the inside can be achieved in a serviceable manner with low component thicknesses without structural waterproofing.
Depending on the local conditions with regard to terrain, building ground and water - percolating or accumulating water, groundwater, floods - as well as your usage requirements in the building according to DIN 18205**, we develop waterproofing and usage concepts for you according to the generally accepted rules of technology. If you have high demands on the use of rooms, you must be advised in detail on the constructional concepts by experienced specialist planners, so that the construction method supplied is also comprehensible to building owners and laymen. On the basis of many reference objects, we will be pleased to show you solutions for your underground structures, e.g. for wells or underground transformer stations or structures for sewage management, and implement them for you with all the advantages of turnkey construction.
*DAfStb guideline "Water impermeable structures made of concrete" of the German Committee for Reinforced Concrete e. V., Berlin
**DIN 18205 "Demand planning in construction".






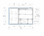
With help by this matrix you can read off the size variety of the individual structures - and combine them. Other dimensions are possible on request.



| TYP | Li [m] | Wi [m] | Hi [m] | Le* [m] | Be* [m] | He** [m] | Built Area* [m²] | Converted space [m³] | Weight*** [to] |
|---|---|---|---|---|---|---|---|---|---|
| 1824 | 2,18 | 1,58 | 3,20 | 2,38 | 1,78 | 3,32 | 4,24 | 14,50 | 11,43 |
| 1827 | 2,48 | 2,68 | 4,77 | 15,84 | 12,35 | ||||
| 1830 | 2,78 | 2,98 | 5,30 | 18,31 | 13,27 | ||||
| 1833 | 3,08 | 3,28 | 5,84 | 19,38 | 14,18 | ||||
| 1836 | 3,38 | 3,58 | 6,37 | 21,79 | 15,10 | ||||
| 1839 | 3,68 | 3,88 | 6,91 | 22,93 | 16,02 | ||||
| 1842 | 3,98 | 4,18 | 7,44 | 25,45 | 16,94 |
| TYP | Li [m] | Wi [m] | Hi [m] | Le* [m] | Be* [m] | He** [m] | Built area* [m²] | Converted space [m³] | Weight*** [to] |
|---|---|---|---|---|---|---|---|---|---|
| 2524 | 2,18 | 2,30 | 3,20 | 2,38 | 2,50 | 3,32 | 5,95 | 20,35 | 14,51 |
| 2530 | 2,78 | 2,98 | 7,45 | 25,48 | 16,65 | ||||
| 2536 | 3,38 | 3,58 | 8,95 | 30,61 | 18,78 | ||||
| 2542 | 3,98 | 4,18 | 10,45 | 35,74 | 20,91 | ||||
| 2548 | 4,58 | 4,78 | 11,95 | 40,87 | 23,05 | ||||
| 2554 | 5,18 | 5,38 | 13,45 | 44,65 | 25,18 | ||||
| 2560 | 5,78 | 5,98 | 14,95 | 49,63 | 27,31 | ||||
| 2566 | 6,38 | 6,58 | 2,54 | 16,71 | 55,49 | 31,74 | |||
| 2572 | 6,98 | 7,18 | 18,24 | 60,55 | 35,08 | ||||
| 2578 | 7,58 | 7,78 | 19,76 | 65,61 | 37,50 | ||||
| 2584 | 8,18 | 8,38 | 21,29 | 70,67 | 39,92 | ||||
| 2590 | 8,78 | 8,98 | 22,81 | 75,73 | 42,35 | ||||
| 2596 | 9,38 | 9,58 | 24,33 | 80,79 | 44,77 |
| TYP | Li [m] | Wi [m] | Hi [m] | Le* [m] | Be* [m] | He** [m] | Built area* [m²] | Converted space [m³] | Weight*** [to] |
|---|---|---|---|---|---|---|---|---|---|
| 2724 | 2,18 | 2,50 | 3,20 | 2,38 | 2,70 | 3,32 | 6,43 | 21,33 | 15,37 |
| 2730 | 2,78 | 2,98 | 8,05 | 26,71 | 17,59 | ||||
| 2736 | 3,38 | 3,58 | 9,67 | 32,09 | 19,80 | ||||
| 2742 | 3,98 | 4,18 | 11,29 | 37,47 | 22,02 | ||||
| 2748 | 4,58 | 4,78 | 12,91 | 42,85 | 24,23 | ||||
| 2754 | 5,18 | 5,38 | 14,53 | 48,23 | 26,45 | ||||
| 2760 | 5,78 | 5,98 | 2,74 | 16,39 | 54,40 | 30,75 | |||
| 2766 | 6,38 | 6,58 | 18,03 | 59,86 | 33,18 | ||||
| 2772 | 6,98 | 7,18 | 19,67 | 65,32 | 36,67 | ||||
| 2778 | 7,58 | 7,78 | 21,32 | 70,77 | 39,18 | ||||
| 2784 | 8,18 | 8,38 | 22,96 | 76,23 | 41,69 | ||||
| 2790 | 8,78 | 8,98 | 24,61 | 81,69 | 44,20 | ||||
| 2796 | 9,38 | 9,58 | 26,25 | 87,15 | 46,71 |
| TYP | Li [m] | Wi [m] | Hi [m] | Le* [m] | Be* [m] | He** [m] | Built area* [m²] | Converted space [m³] | Weight*** [to] |
|---|---|---|---|---|---|---|---|---|---|
| 3018 | 1,58 | 2,78 | 3,20 | 1,78 | 2,98 | 3,32 | 5,30 | 18,13 | 14,24 |
| 3024 | 2,18 | 2,38 | 7,09 | 24,25 | 16,57 | ||||
| 3030 | 2,78 | 2,98 | 8,88 | 30,37 | 18,90 | ||||
| 3036 | 3,38 | 3,58 | 10,67 | 36,49 | 21,23 | ||||
| 3042 | 3,98 | 4,18 | 12,46 | 42,61 | 23,56 | ||||
| 3048 | 4,58 | 4,78 | 14,24 | 48,70 | 25,89 | ||||
| 3054 | 5,18 | 5,38 | 3,02 | 16,03 | 54,82 | 30,11 | |||
| 3060 | 5,78 | 5,98 | 17,82 | 60,94 | 32,65 | ||||
| 3066 | 6,38 | 6,58 | 19,61 | 67,07 | 35,19 | ||||
| 3072 | 6,98 | 7,18 | 21,68 | 74,58 | 38,90 | ||||
| 3078 | 7,58 | 7,78 | 23,50 | 80,84 | 41,53 | ||||
| 3084 | 8,18 | 8,38 | 25,31 | 87,07 | 44,17 | ||||
| 3090 | 8,78 | 8,98 | 27,12 | 93,29 | 46,80 | ||||
| 3096 | 9,38 | 9,58 | 28,93 | 99,52 | 49,44 | ||||
| 30102 | 9,98 | 10,18 | 30,74 | 105,75 | 52,07 | ||||
| 30108 | 10,58 | 10,78 | 32,56 | 112,01 | 54,71 |
| TYP | Li [m] | Wi [m] | Hi [m] | Le* [m] | Be* [m] | He** [m] | Built area* [m²] | Converted space [m³] | Weight*** [to] |
|---|---|---|---|---|---|---|---|---|---|
| 3342 | 3,98 | 3,08 | 3,20 | 4,18 | 3,28 | 3,32 | 16,00 | 55,04 | 25,60 |
| 3348 | 4,58 | 4,78 | 3,32 | 16,00 | 55,04 | 29,81 | |||
| 3354 | 5,18 | 5,38 | 17,99 | 61,89 | 32,55 | ||||
| 3360 | 5,78 | 5,98 | 19,99 | 68,77 | 35,28 | ||||
| 3366 | 6,38 | 6,58 | 21,98 | 75,61 | 38,02 | ||||
| 3372 | 6,98 | 7,18 | 23,97 | 82,46 | 40,76 | ||||
| 3378 | 7,58 | 7,78 | 25,96 | 89,30 | 43,50 | ||||
| 3384 | 8,18 | 8,38 | 27,95 | 96,15 | 46,24 | ||||
| 3390 | 8,78 | 8,98 | 29,81 | 98,98 | 50,57 | ||||
| 3396 | 9,38 | 9,58 | 31,81 | 105,59 | 53,41 |
| TYP | Li [m] | Wi [m] | Hi [m] | Le* [m] | Be* [m] | He** [m] | Built area* [m²] | Converted space [m³] | Weight*** [to] |
|---|---|---|---|---|---|---|---|---|---|
| 3642 | 3,98 | 3,38 | 3,20 | 4,18 | 3,58 | 3,32 | 14,96 | 49,68 | 27,30 |
| 3648 | 4,58 | 4,78 | 3,62 | 17,30 | 57,45 | 31,65 | |||
| 3654 | 5,18 | 5,38 | 19,48 | 64,66 | 34,52 | ||||
| 3660 | 5,78 | 5,98 | 21,65 | 71,87 | 37,39 | ||||
| 3666 | 6,38 | 6,58 | 23,82 | 79,08 | 40,26 | ||||
| 3672 | 6,98 | 7,18 | 25,99 | 86,29 | 43,13 | ||||
| 3678 | 7,58 | 7,78 | 28,16 | 93,50 | 46,00 | ||||
| 3684 | 8,18 | 8,38 | 30,34 | 100,71 | 48,87 | ||||
| 3690 | 8,78 | 8,98 | 32,51 | 107,93 | 53,48 | ||||
| 3696 | 9,38 | 9,58 | 34,68 | 115,14 | 56,46 |
| TYP | Li [m] | Wi [m] | Hi [m] | Le* [m] | Be* [m] | He** [m] | Built area* [m²] | Converted space [m³] | Weight*** [to] |
|---|---|---|---|---|---|---|---|---|---|
| 3942 | 3,98 | 3,68 | 3,20 | 4,18 | 3,92 | 3,34 | 16,39 | 54,73 | 32,20 |
| 3948 | 4,58 | 4,78 | 18,74 | 62,58 | 35,45 | ||||
| 3954 | 5,18 | 5,38 | 21,09 | 70,44 | 38,70 | ||||
| 3960 | 5,78 | 5,98 | 23,44 | 78,29 | 41,95 | ||||
| 3966 | 6,38 | 6,58 | 25,79 | 86,15 | 45,19 | ||||
| 3972 | 6,98 | 7,18 | 28,15 | 94,01 | 48,44 | ||||
| 3978 | 7,58 | 7,78 | 30,50 | 101,86 | 51,69 | ||||
| 3984 | 8,18 | 8,38 | 32,85 | 109,72 | 54,94 | ||||
| 3990 | 8,78 | 8,98 | 35,20 | 117,57 | 58,18 | ||||
| 3996 | 9,38 | 9,58 | 37,55 | 125,43 | 61,43 |
| TYP | Li [m] | Wi [m] | Hi [m] | Le* [m] | Be* [m] | He** [m] | Built area* [m²] | Converted space [m³] | Weight*** [to] |
|---|---|---|---|---|---|---|---|---|---|
| 4242 | 3,98 | 3,98 | 3,20 | 4,22 | 4,22 | 3,34 | 17,64 | 58,92 | 34,04 |
| 4248 | 4,58 | 4,78 | 20,17 | 67,37 | 37,44 | ||||
| 4254 | 5,18 | 5,38 | 22,70 | 75,83 | 40,84 | ||||
| 4260 | 5,78 | 5,98 | 25,24 | 84,29 | 44,24 | ||||
| 4266 | 6,38 | 6,58 | 27,77 | 92,74 | 47,63 | ||||
| 4272 | 6,98 | 7,18 | 30,30 | 101,20 | 51,03 | ||||
| 4278 | 7,58 | 7,78 | 32,83 | 109,66 | 54,43 | ||||
| 4284 | 8,18 | 8,38 | 35,36 | 118,11 | 57,83 | ||||
| 4290 | 8,78 | 8,98 | 37,90 | 126,57 | 61,23 | ||||
| 4296 | 9,38 | 9,58 | 40,43 | 135,03 | 64,63 |
Li=internal length, Wi=internal width, Hi=internal height, Le=external length, We=external width, He=external height * plus roof structure (generally 26 cm for DV, DVM, DBA, DRO)
* Change in external dimensions due to modification of wall thickness for structural reasons
** Plus roof structure, change in external dimensions due to modification of floor or ceiling thickness for structural reasons
*** Weight of the room module, total weight depending on the chosen room geometry and the level of interior finishing

Underground solution concepts are the answer to limited installation space and the associated lack of suitable installation sites.